Pavilion Residence

Located in the wine country town of Healdsburg, this ground-up project is composed of a one-story main residence, a freestanding ADU, and a lap pool, becoming the client’s “forever home.”

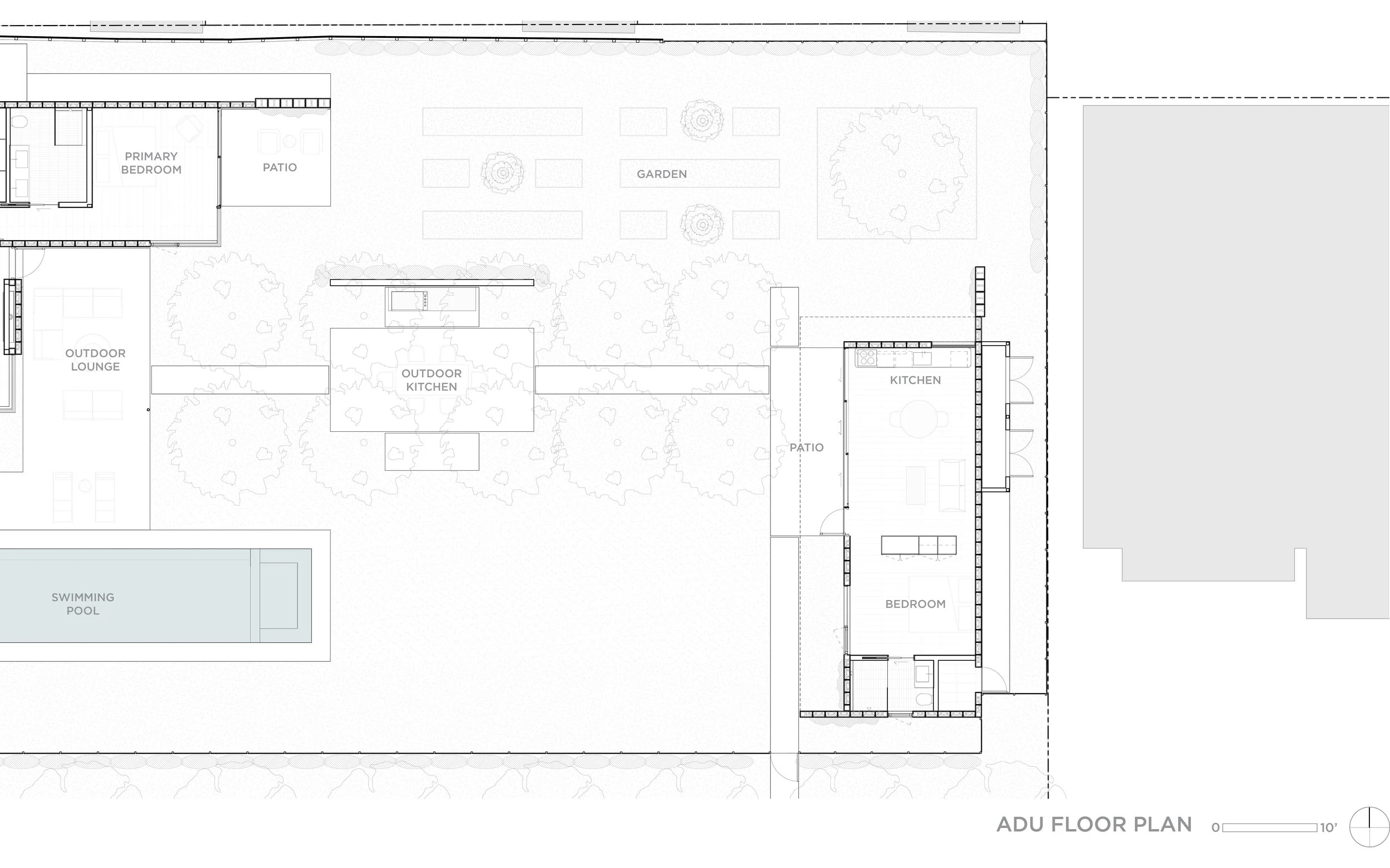
The proposed site is the result of the merging of two relatively flat lots, creating a very generous canvas for the project. We took advantage of the extensive site to develop the main residence into three distinct “pavilions” united under one continuous 10-foot ceiling. The central pavilion hosts a guest bedroom, and the Living/Dining/Kitchen space with large floor-to-ceiling sliders that open-up to an extensive outdoor patio, a lounge area and the swimming pool. To the South, a glass corridor leads from the kitchen to the bedroom-and-office pavilion with a full bathroom. The third pavilion is to the North and hosts the primary suite that extends towards the landscape and the ADU. Each bedroom has a direct connection to their own unique garden space, reinforcing the close relationship of the pavilions to the landscape they sit in.

The project is located at the crossroads of Healdsburg’s residential and industrial districts, giving it a unique opportunity to serve as bridge between the two zonings. The proposed buildings’ scale relates to the surrounding residential buildings, and the exposed concrete masonry units that constitute the exterior walls of the residence and ADU are a nod to the surrounding industrial buildings. A curated but rich material palette ties the whole project together with light oak floors and veneer panels, anodized aluminum windows and kitchen module units, and the half-high burnished CMU give a more domestic feel and scale to this typically more commercial material. At the exterior, the landscape and hardscape elements take advantage of the generous site and connect the pavilions of the main residence and the ADU with each other, thanks to a long and slender pool, and a tree alley leading from the outdoor lounge area to an outdoor kitchen, to the ADU.

Next
Next

House Over Workshop