Ridgeview

Tasked with framing the view from an existing house out onto an expansive valley, we started by reducing the building’s oversized, heavy massing that competed with its modest hillside site. We eliminated the pitched roof and a tall bay window on the front facade and perched the two upper levels atop a garage clad in dark metal. The horizontality of these upper volumes lend them a floating lightness that complements the site’s sloping topography.

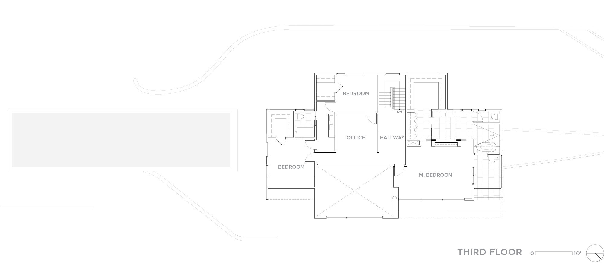
Inside, rooms are designed to orient toward views, with openings that carefully frame the wooded exteriors in the foreground and hilly landscape in the background. In the bedroom, a long, horizontal glazed opening bring in a serene, almost panoramic view, while a double-height window in the living room washes the interior with daylight from the northeast. An adjacent lap pool and view deck underscore the main living space’s connection to the outdoors.

An elegant palette of grays materials—cement board panels, cement plaster, and aluminum windows—create contrast with the natural colors that surround the home: the sky’s deep blue, the cool green of the trees, the valley’s light gold. Wrapping around an existing Japanese maple, the home’s main entry stair reinforces this meeting of the natural world with the built form. 

Previous
Previous

Pac Heights

Next
Next

Peninsula